For Sale

The Sibson, Willowbank Road, Alderton, Tewkesbury, GL20 8NJ

£590,000 Guide Price
4 Bedroom Detached House
4 bedrooms
2 bathrooms
2 receptions
  • Property Features

    • MOVE FOR FREE WITH STAMP DUTY, LEGAL FEES AND REMOVALS PAID SAVING YOU £22K
    • QUIET VILLAGE LOCATION IN THE COTSWOLDS
    • READY FOR OCCUPATION SPRING 2026
    • SEPARATE UTILITY WITH REAR DOOR ACCESS
    • FOUR SPACIOUS BEDROOMS
    • BEAUTIFUL COUNTRYSIDE VIEWS
    • EN-SUITE TO BEDROOM ONE
    • LIVING ROOM WITH BIFOLD DOORS TO GARDEN
    • SINGLE DETACHED GARAGE AND PARKING FOR TWO VEHICLES
    • BEAUTIFUL SPECIFICATION WITH UPGRADED APPLIANCES

    Property Summary

    RESERVE PLOT 47 & MOVE FOR FREE! STAMP DUTY, LEGAL FEES & MOVING FEES PAID! Spring 2026 occupation. PX AVAILABLE. 4 bed DETACHED home in the COTSWOLDS. DETACHED GARAGE & PARKING FOR 2. 1345 SQ FT. HIGH SPEC with BIFOLD doors to IMPRESSIVE GARDEN!

    Full Details

    Move for FREE with stamp duty, legal fees and removals paid for saving you £22,000!

    Ready for occupation SPRING 2026! Plot 47, The Sibson is a stylish four-bedroom detached home designed for modern family life. The open-plan kitchen, dining, and family area with bi-fold doors onto the garden creates a bright, social hub, while a separate utility and downstairs WC add practical convenience.

    Upstairs, three double bedrooms and a single bedroom provide space for family, guests, or a home office, with the master suite enjoying a private en suite. A detached garage and two parking spaces complete this home, which also features energy-efficient solar panels and EV charging points.

    1,345 sq. ft.

    Ready to move in Spring 2026, The Sibson offers a perfect mix of style, space, and comfort in the welcoming Willowbank Meadows community.

    Key features that make this home:

    • Open-plan kitchen with integrated appliances

    • Separate utility room with  rear door access

    • Living room with bi-fold doors onto rear garden

    • Three double bedrooms and one single bedroom

    • En suite to the master bedroom

    • Downstairs WC 

    • Detached garage plus two parking spaces

    Discover Willowbank Meadows, a thoughtfully designed collection of 48 homes in the heart of Alderton, a picturesque village at the foot of the Cotswolds. Surrounded by open countryside and a welcoming local community, this is rural living with a real sense of connection – a place where peace, charm, and village life come together, unlike larger, impersonal estates.

     For further information or viewing requests, please call Michael Tuck Sales & Lettings on 01684 642642

    Images may not represent the actual plot for sale

    For further information or to arrange a viewing on this beautiful home, please call Michael Tuck Estate Agents on 01684 642642.

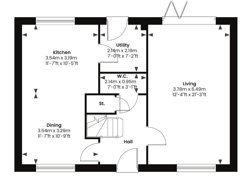
    Kitchen 10' 6" x 11' 7" (3.19m x 3.54m)

    Diner 10' 10" x 11' 7" (3.29m x 3.54m)

    Utility 7' 2" x 7' 0" (2.19m x 2.14m)

    WC 7' 0" x 3' 1" (2.14m x 0.95m)

    Living room 18' 0" x 12' 5" (5.49m x 3.78m)

    Bedroom 1 12' 2" x 12' 9" (3.70m x 3.88m)

    En-suite 7' 1" x 5' 4" (2.17m x 1.63m)

    Bedroom 2 11' 8" x 12' 6" (3.55m x 3.80m)

    Bedroom 3 12' 2" x 8' 4" (3.70m x 2.54m)

    Bedroom 4 9' 7" x 8' 7" (2.92m x 2.62m)

    Bathroom 6' 8" x 7' 1" (2.03m x 2.17m)

  • Groundfloor-2 Firstfloor
    • Please fill in your details below and our team will get back to you as soon as possible to arrange a viewing.
    • From time to time we will send you information about properties that we feel may be of interest to you and/or provide you with information about our valuation services. If you would like to receive information from us, please indicate this by selecting the appropriate box(es) below:
    • We do not share your email address with any third party without your prior approval. See our privacy policy for further details.

Interested in this property?

Call Michael Tuck Land and New Homes between 8:15 and 6pm weekdays, 9am to 4pm on Saturdays:

Request a viewing
banner-valuation-1-scaled.jpg?w=1024&h=683&scale

Book a FREE Valuation

Book a FREE Valuation with Michael Tuck Estate Agents today and find out how much your property is worth!
Book a FREE Valuation

A detailed guide on where to live in Gloucester

The specialist agents with an extensive knowledge of Gloucester

View area guide
Share

Similar properties for sale

Ashbrittle Road, Brockworth, GL3 4FT

£255,000 Guide Price
2 Bedroom Semi-Detached House For Sale
2
1
1

Grayling Close, Abbeymead, Gloucester, GL4

£395,000 Guide Price
4 Bedroom Detached House For Sale
4
1
3

Damson Close, Abbeymead, Gloucester, GL4 5BW

£279,000 Guide Price
3 Bedroom Semi-Detached House For Sale
3
1
2

Hear what our clients have to say...

We have used Michael Tuck for both Lettings and Sales, and they have always been professional and efficient. In particular, Miles Pledger, now in the Tewkesbury Office was instrumental in getting our recent, very difficult sale over the line. I would use them again in a heartbeat.

Richard Spence

I’ve used Michael Tuck in Gloucester for both purchase and selling in the last three years. The service was always professional, Miles Pledger, now in the Tewkesbury Office especially handled both sales really well.

Glyn Cairns

Michael Tuck Lettings in Quedgeley have managed our rental property for the past 11+ years.

During this time their professionalism has never dropped. In the early days, Ian, Graham and Vikki-Lee were a huge help to a novice landlord. I’m pleased to say they are still there with a helping hand. Claire has always been the nudge I needed for the necessary insurance and safety checks. Having had some difficult times over the past couple of years I would like to say a special thank you to Lianne who has been there to help wherever she could.

We are in the process of selling the property and as expected Miles and Otis are dealing with everything with Tucks usual professionalism.

I have no hesitation in recommending this lovely, friendly office.

Linda Parker

I cannot recommend Michael Tuck Estate Agents enough.

They were so professional and so prompt with their communication. In particular we would like to mention Charlie for his regular updates and extremely helpful service in the sale of my mothers house. We were in a particularly long chain, and he went over and above to assist us in the communications between the buyers and sellers in order for our chain to proceed. He even contacted Solicitors and helped progress the exchange.

“We are certain if it wasn’t for him we wouldn’t have sold our house! We cannot thank him and his team enough.”

Kelly Durkin

Miles has gone above and beyond to ensure buying our first house has been a smooth process. He has offered clarification and reassurance at all steps of the journey, making us feel like valued clients.

“We would recommend Michael Tuck Estate Agents.”

Hollie Blunt

Michael Tuck New Homes in Gloucester assisted us selling three phases of our development in Kingsway, Gloucester.

“All of the staff were very professional and knowledgeable sales people who represented our company as if it were their own.”

If we were to need help selling our homes in the Gloucester ara again they would be the first phone call i’d make.

Stephen Holbrook. Abbey Homes

Tony and John, Abbeymead branch, supported us during very difficult circumstances (and we don’t just mean Covid!)

The same applies to other staff when answering queries etc.

“They were unfailingly courteous and returned phone calls and emails promptly.”

David Duncan

I have been a customer of Michael Tuck Lettings in Abbeymead for coming up to 2 years now.

I would like to highlight Kurt and James for there forever ending support and excellent communication. Their joint efforts have filled me with confidence in the ability to keep my family safe in a home we love.

No matter the complexity or need they are always on hand to support and come to some form of reasonable resolution.

For this reason I would recommend Michael Tuck to all my family and friends and will hopefully continue to stay a customer of Michaels Tucks until I purchase my own home. Thank you

“Being a contact centre manager I know how important customer service is and I must say that Michael Tuck has not disappointed.”

Jay Preece

Miles and the team have been brilliant from start to finish during the sale of our house.

Miles especially went above and beyond with sales chasing when I think most other people would have probably given up! Really happy with the service.

“Such a friendly and professional team and nothing was too much trouble.”

Anna England

I was recommended Michael Tuck Estate Agents in Abbeymead by a friend, thank you friend!

I would like to say a big thank you and well done to the team who are very friendly, helpful and have taken the strain out of what was a fairly long house sale.

Special thanks go to Chloe and Tony for their positivity and Chloe thank you for your good humour which lifted me during the long process!

“I would highly recommend them for a first class service”

Jane West